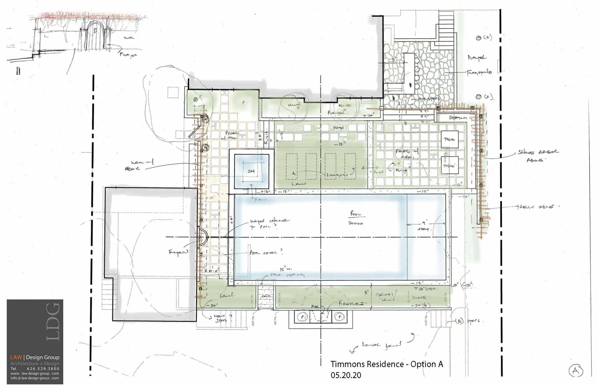
site title

.